
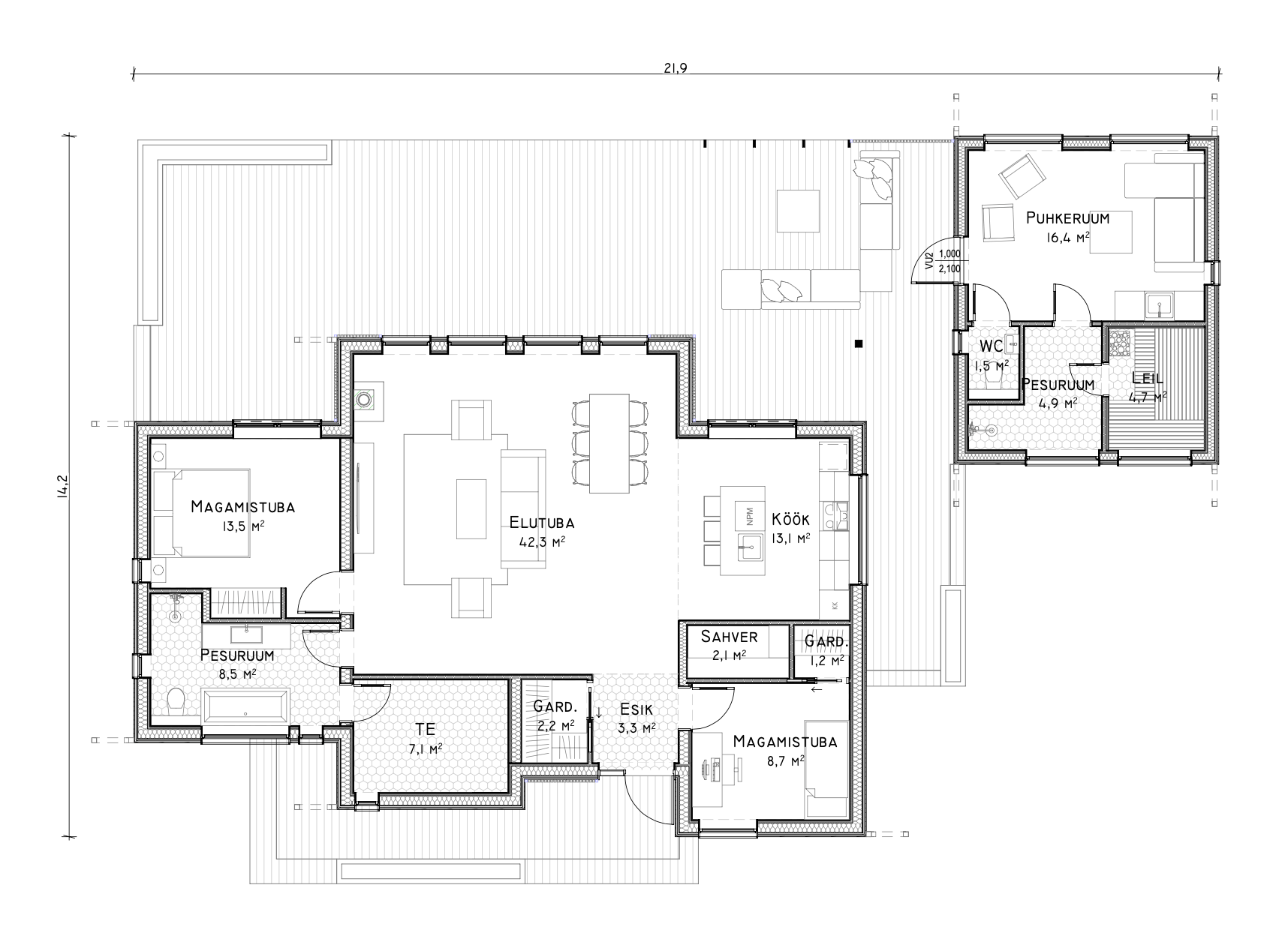
Das „Zypresse“ ist ein modernes Meisterwerk, das durch seine elegante Architektur und großzügige Raumaufteilung beeindruckt. Mit einer Gesamtfläche von 170 qm und einer Nutzfläche von 129 qm bietet dieses Haus viel Platz für komfortables Wohnen.
Die stilvolle Fassade besticht durch klare Linien und große Fenster, die ein lichtdurchflutetes Ambiente schaffen. Im Inneren verbindet der offene Grundriss den Wohn-, Ess- und Küchenbereich harmonisch, wodurch ein einladendes Raumgefühl entsteht.
Das Haus verfügt über zwei geräumige Schlafzimmer, ideal für Familien oder Gäste. Zwei moderne WC-Bereiche sorgen für zusätzlichen Komfort. Das luxuriöse Badezimmer ist mit hochwertigen Materialien ausgestattet und lädt zum Entspannen ein. Eine besondere Attraktion ist die Sauna, die für Wohlbefinden und Entspannung sorgt.
Die großzügige Terrasse erweitert den Wohnraum ins Freie und ist perfekt für gesellige Abende oder entspannte Stunden im Freien. Hochwertige Materialien und eine sorgfältige Verarbeitung garantieren ein stilvolles und behagliches Wohngefühl.
Das „Zypresse“ bietet eine perfekte Kombination aus Modernität, Komfort und Luxus und ist ideal für anspruchsvolles Wohnen.
Das Holzhaus Zypresse 130 bietet auf einer Gesamtfläche von 170 qm, eine Nutzfläche von 129 qm, Sauna, 2 WC, Terrasse und 2 Schlafzimmer.