
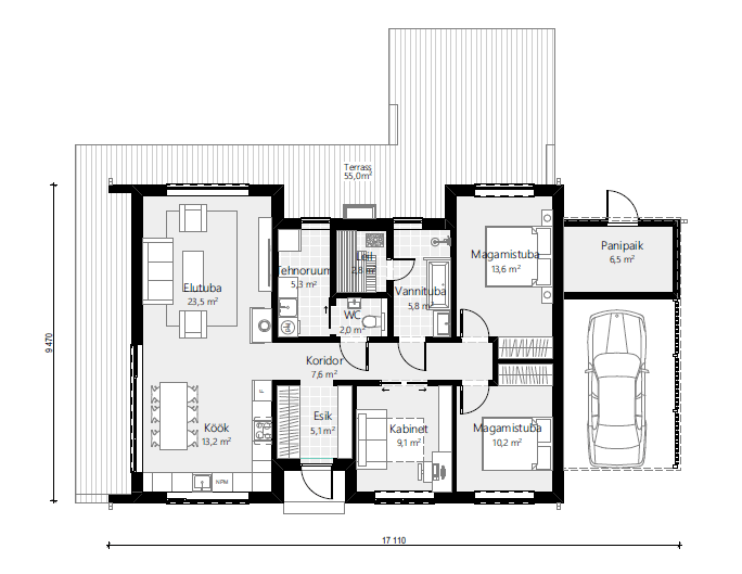
Das Elementhaus Fichte besticht durch seine durchdachte Raumaufteilung und moderne Architektur. Mit einer Gesamtfläche von 146 qm bietet es ausreichend Platz für die ganze Familie. Die 104 qm Nutzfläche umfassen drei großzügige Schlafzimmer, ein geräumiges Wohnzimmer und eine gemütliche Sauna. Von außen beeindruckt das Haus durch seine klare Linienführung und die Verwendung von hochwertigen Holzmaterialien, die ihm einen warmen und einladenden Charakter verleihen. Große Fenster sorgen für helle, freundliche Räume und einen schönen Ausblick ins Grüne. Der offene Wohn-Essbereich lädt zu geselligen Stunden ein, während die solide Bauweise für Langlebigkeit und Komfort steht. Ideal für Familien, die Wert auf ein stilvolles und funktionales Zuhause legen.
Das Elementhaus Fichte 104 hat eine Gesamtfläche von 146 qm, eine Nutzfläche von 104 qm, 3 Schlafzimmer und Sauna.