
Das moderne Haus „Lebensbaum“ bietet eine gelungene Kombination aus zeitgemäßem Design und funktionaler Architektur. Die Fassade des Hauses besticht durch klare Linien und große Fensterflächen, die für ein lichtdurchflutetes Ambiente sorgen und einen wunderschönen Blick ins Freie ermöglichen.
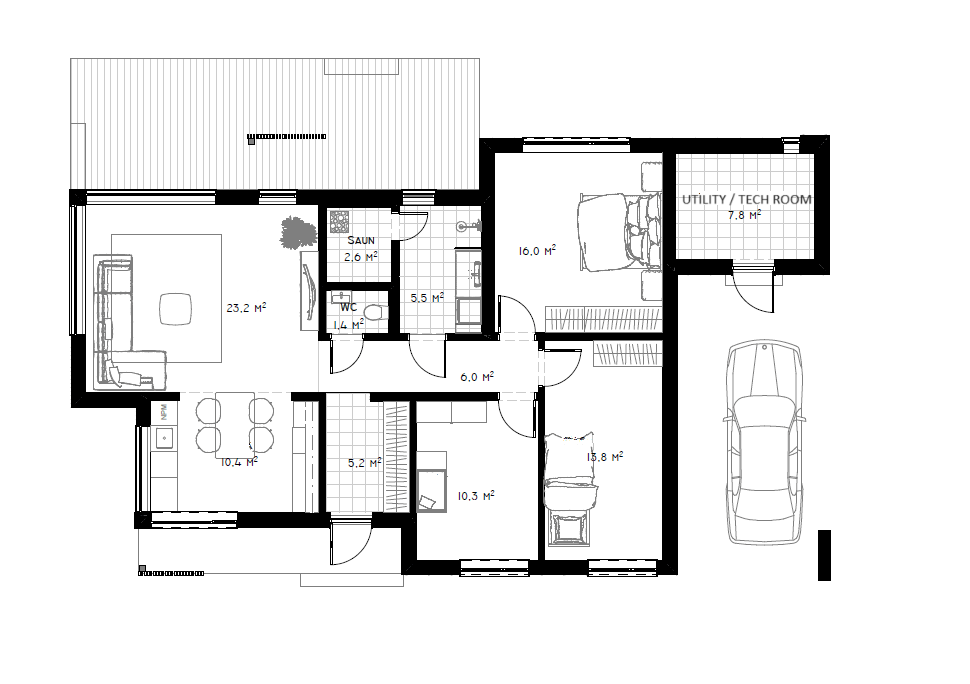
Mit einer Gesamtfläche von 154 qm und einer Nutzfläche von 105 qm bietet das Haus viel Platz zum Wohlfühlen. Innen überzeugt das Haus mit einem offenen Grundriss, der den Wohn-, Ess- und Küchenbereich nahtlos miteinander verbindet. Die drei Schlafzimmer sind großzügig gestaltet und bieten ausreichend Platz für Erholung. Zudem verfügt das Haus über eine Sauna und einen praktischen Autounterstand. Hochwertige Materialien und eine sorgfältige Verarbeitung sorgen für ein behagliches Wohngefühl. Der Außenbereich mit Terrasse lädt zum Entspannen und Genießen ein, was das „Lebensbaum“ zu einem idealen Rückzugsort macht.
Das Elementhaus Lebensbaum 105 bietet eine Gesamtfläche von 154 qm, eine Nutzfläche von 105 qm, Sauna, 3 Schlafzimmer und einen praktischen Autounterstand.