
Das Haus „Linde“ vereint modernes Design mit hoher Funktionalität. Die elegante Fassade besticht durch klare Linien und große Fenster, die für ein helles und freundliches Ambiente sorgen.
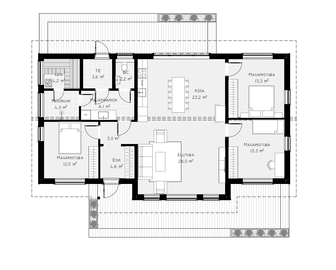
Mit einer Gesamtfläche von 136 qm und einer Nutzfläche von 115 qm bietet das Haus reichlich Platz. Der offene Grundriss verbindet den Wohn-, Ess- und Küchenbereich harmonisch. Drei geräumige Schlafzimmer und ein luxuriöses Badezimmer sorgen für Komfort.
Im Inneren bietet das Haus einen großzügigen Wohnbereich, ideal für Familienaktivitäten und gesellige Abende. Die moderne Küche ist mit hochwertigen Geräten ausgestattet und bietet viel Stauraum. Die großen Fenster lassen viel Tageslicht herein und bieten einen schönen Blick nach draußen.
Das luxuriöse Badezimmer ist modern eingerichtet und bietet viel Platz für Wellness und Entspannung. Hochwertige Materialien und eine sorgfältige Verarbeitung garantieren ein stilvolles Wohngefühl.
Zusätzlich verfügt das Haus über eine Sauna, die zum Entspannen und Wohlfühlen einlädt.
Das Holzhaus Linde 115 bietet eine Gesamtfläche von 136 qm, eine Nutzfläche von 115 qm, eine Sauna und 3 Schlafzimmer.