
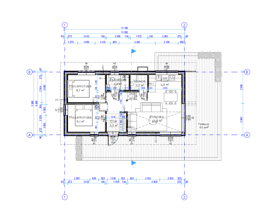
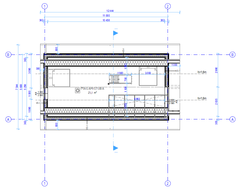
Das Modulhaus Kirsche beeindruckt durch seine kompakte, aber effiziente Raumgestaltung und stilvolle Optik. Mit einer Gesamtfläche von 86 qm und einer Nutzfläche von 75 qm bietet es Platz für drei Schlafzimmer, ideal für kleine Familien oder Paare. Von außen besticht das Haus durch seine elegante, klare Architektur und die Verwendung hochwertiger Materialien, die für ein modernes und einladendes Erscheinungsbild sorgen. Große Fenster lassen viel Licht ins Innere und schaffen eine freundliche, helle Atmosphäre. Der offene Wohn-Essbereich lädt zu gemütlichen Zusammenkünften ein, während die solide Bauweise für Komfort und Langlebigkeit steht. Perfekt für alle, die ein stilvolles und funktionales Zuhause suchen.
Das Holzrahmenhaus Vogelkirsche bietet eine attraktive Gesamtfläche von 86 qm, eine Nutzfläche von 75 qm und 3 Schlafzimmer.